Un air de vacances toute l’année, les pieds dans l’eau.
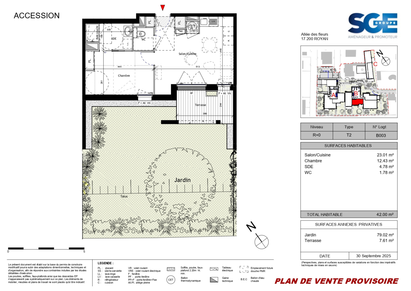
Découvrez cet appartement T2 de 42 m², exposé Sud, situé dans Le Jardin des Vagues, une résidence neuve intimiste et élégante, à quelques mètres à pied de la plage du Pigeonnier – emblème discret et chic de la côte royannaise – et à proximité immédiate de la vibrante plage de Pontaillac.
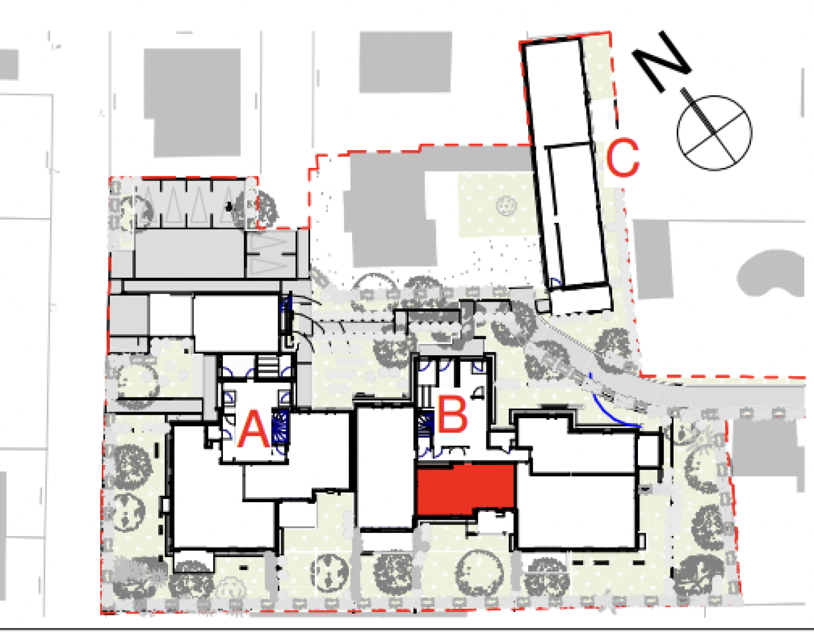
Nichée dans un environnement calme et résidentiel, cette nouvelle adresse propose 23 appartements aux prestations haut de gamme, tous prolongés par de jardins privatifs en rez-de-chaussée ou des terrasses en étage.
En rez-de-chaussée, de magnifiques jardins intimistes, soigneusement conçus, offrent un véritable havre de paix à deux pas de l’océan.
En R+2, certains logements bénéficieront d’un aperçu mer, rare privilège dans ce secteur.
Une attention particulière a été portée à l’aménagement paysager, avec une palette végétale locale et harmonieuse, pensée comme une continuité entre architecture, nature et douceur de vivre. Les espaces verts et cheminements créent une atmosphère sereine et raffinée.
La résidence, entièrement sécurisée, dispose d’un parking en sous-sol (en sus au prix de 25 000€ TTC), et s’inscrit dans un foncier rare et recherché. Une opportunité unique d’acquérir un bien immobilier en bord de mer, dans ce qui sera sans doute l’un des derniers programmes neufs de ce standing sur ce secteur prisé.
Résidence Le Jardin des Vagues – Royan
Du T1 au T4 – Jardins, terrasses, stationnements – Livraison prévisionnelle : Dernier semestre 2027
« Les informations sur les risques auxquels ce bien est exposé sont disponibles sur le site Géorisques : www.georisques.gouv.fr »
Honoraires : 4 % HT inclus charge vendeur ( 271 320 € hors honoraires)
