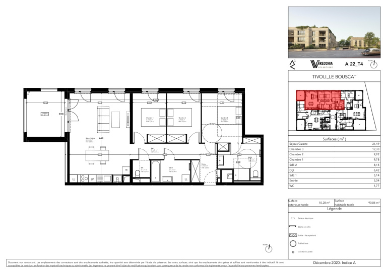
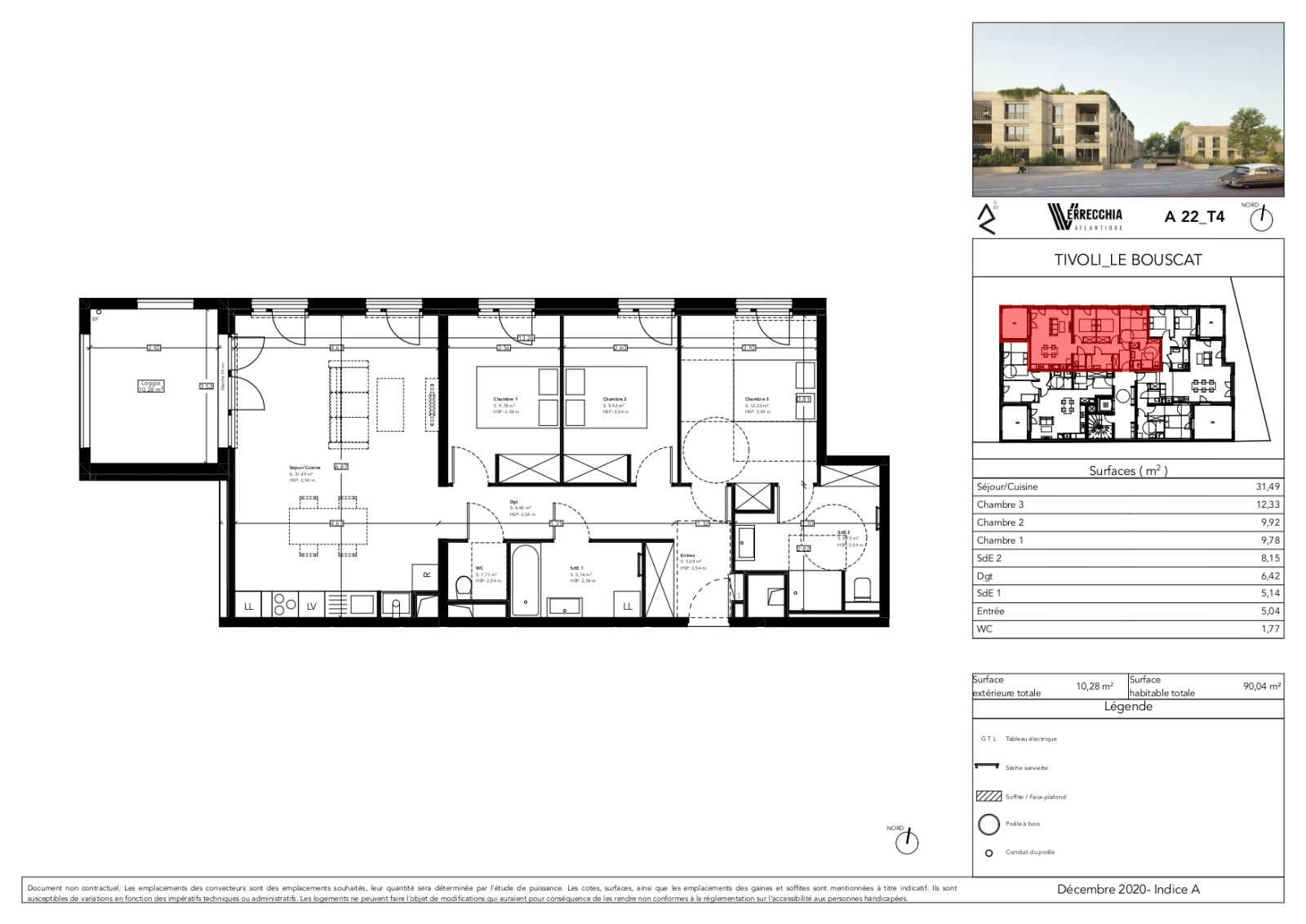
Cet appartement au 2ème étage, avec ascenseur, se compose d'une entrée, d'un séjour avec cuisine (à imaginer), de deux chambres, d'une salle d'eau, d'un wc, et d'une spacieuse loggia.
Chaque logement dispose d’un pack logement connecté.
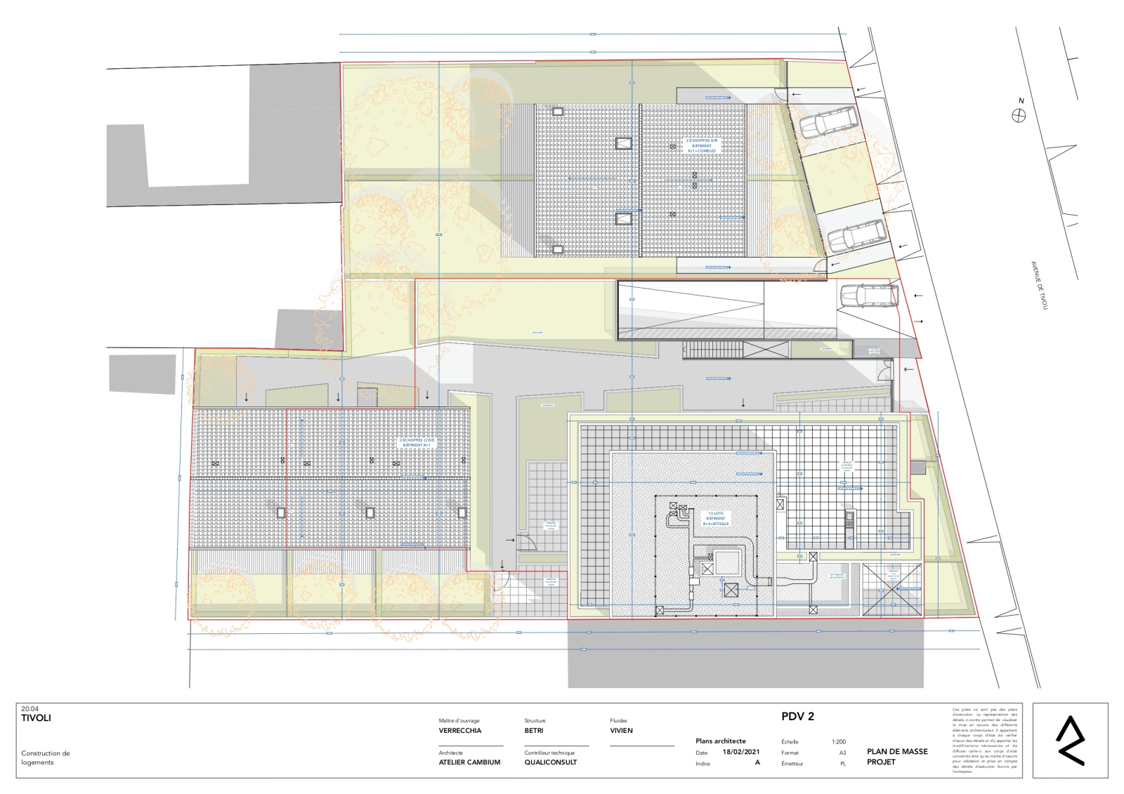
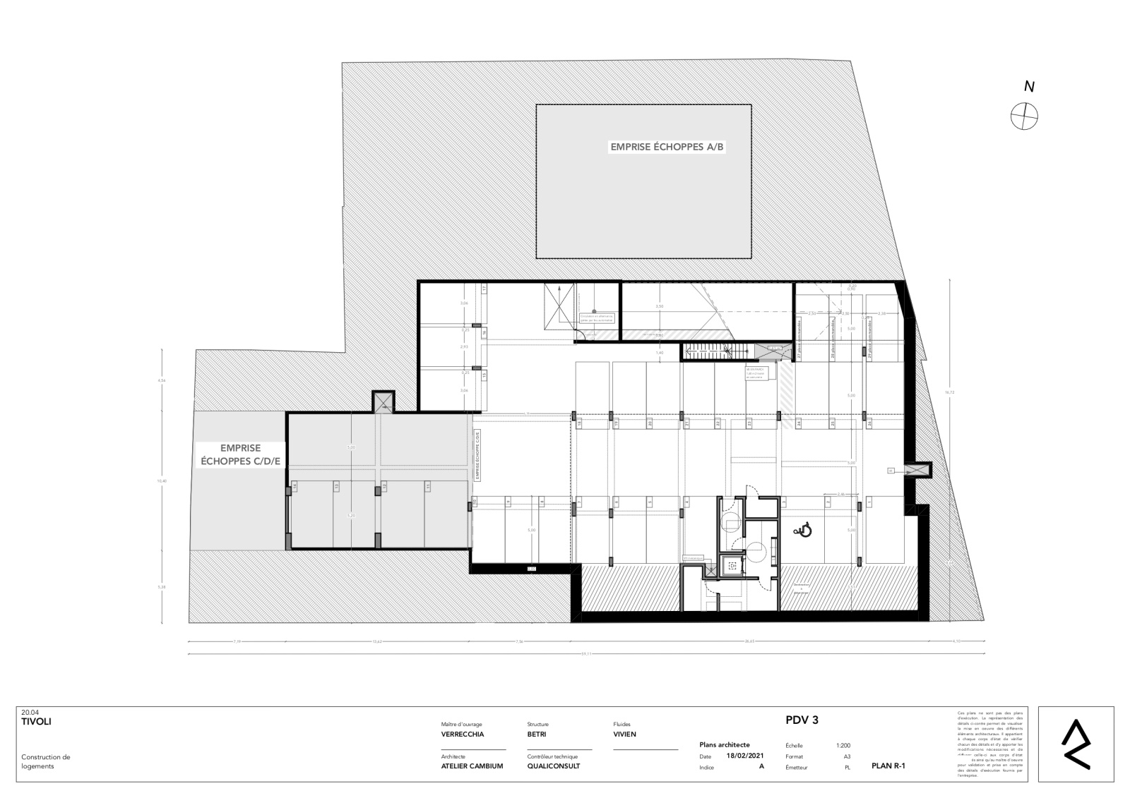
Place de parking en sous-sol.
